青岛房产·青岛买房

半岛房产 >> 二手房 >> 最新出售信息

半岛网房产服务咨询电话:80889213

个人用户登录 用户名 密码 验证码

免费注册 | 中介加盟 | 中介登录

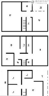
(出售)鲁信长春花园 四室两厅双卫

房源编号:3023089 发布时间:2014-08-15 浏览:629

价格:600万

户型:四室两厅双卫
面积:246㎡
年代:2008
朝向:南向
楼层:3楼(0楼)
装修:豪华装修
住宅类别:住宅

配套设施:暖气, 燃气, 有线电视, 宽带网, 装修, 独立厨房, 独立厕所, 防盗门, 对讲门, 物业管理, 车库, 独立电表, 独立水表, 精装, 塑钢门窗, 带阁楼

位置:鲁信长春花园

联系方式:18300226981联系人:马强

1、小区依托龙翔路,不临街,典型的生活型小区,闹中求静。
2、这房子是牡丹园最便宜的四居室,房主非常诚心,房子户型也非常正,大阳台非常吸引人。
3、周边超市,百货,餐饮,店铺,银行林立,就不怕买不到东西,非常方便。
4、房主诚心卖房,价格好商量。
5、走路到牡丹园地铁就12分钟,公交也方便。
投诉/举报该房源

问题分类:中介冒充房东房源信息虚假联系方式出错

详细说明:

马强

热门房源
购房工具