新 闻
新闻中心
新闻图片
新楼盘
新盘推荐
新房资讯
现场直击
半岛探盘
家 居
家居资讯
时尚家装
半岛房产
>>
新楼盘
>>
户型图
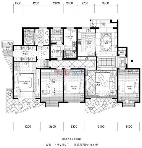
K
第一页
上一页
11
12
13
14
15
下一页
最后一页